
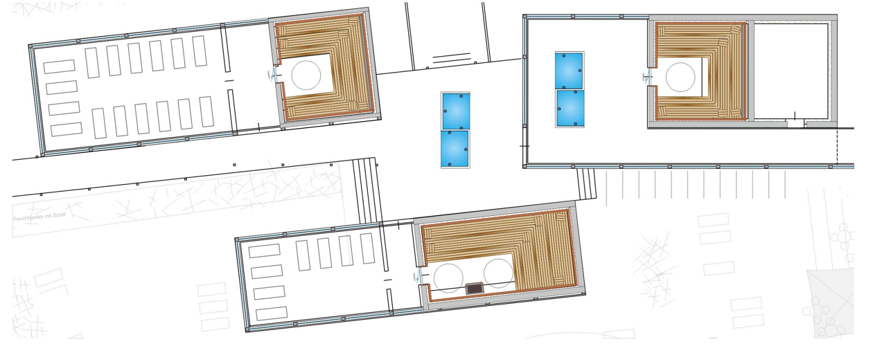
Wellness- und Saunabau-Projekte
Exklusiv und individuell werden Lösungen erarbeitet, um bereits in der Planung für Sie das Optimum zu erreichen, damit Ihre neue Saunalandschaft ein Meisterstück wird.
Denn das Wohl Ihrer Besucher liegt mir am Herzen.
![]() | Wellness und Saunabau verbunden mit Handwerkskunst und GeschmackModern und doch mit viel Tradition zeigt sich diese typische bayrische Ausbauart. Gekonnt wird hier mit regionalen Holzarten und Holzverbindungen gepaart mit anderen Oberflächen und Materialien ein unverwechselbares und stimmiges Gesamtbild erschaffen. ... mehr |
![]() | Form und Farben aller HundertwasserDer Architekt Hundertwasser wurde berühmt durch seine unverkennbare Bauweise und dem Spiel mit Form, Farbe sowie Materialien. Auch in der Saunalandschaft kann an diese Bauweise angelehnt Neues und Spektakuläres entstehen. Sind Sie offen dafür? |
![]() | In der Ruhe liegt die Kraft.. dieser Spruch birgt so viel in sich und doch schaffen es die wenigsten wirklich zur Ruhe zu kommen. Bringen Sie Ihre Gäste mit Leichtigkeit dazu, durch einzigartiges Lichtspiel oder durch spezielle Musik, "abzuschalten" um wieder Kraft zu tanken. |







